Dunaszeg,
Premium-Spiegelsauna-Familie

loading
Premium Wellness
  • Premium Wellness
  • Outdoor Sauna
  • Spiegelglas Sauna
  • Sauna mit Pergola
  • Panorama Sauna
  • Winterliche Sauna
  • Sauna Abendstimmung
  • Mirror Lounge
  • Tropische Entspannung
  • Ruhe am See
  • Garten Wellness
  • Premium Wellness alpine
  • Mirror Zen
  • Sauna Grundriss
  • Wellnesshaus Grundriss
  • Sauna Grundriss

Wenn sich die Spiegelglas Sauna dem Rhythmus des Lebens anpasst


Als das Konzept der Spiegelglas Saunafamilie entstand, wollten wir nicht einfach ein weiteres auffälliges Wellness Element entwerfen. Von den ersten Gedanken an leitete uns eine einzige Frage:

Wie kann Wellness zu einem natürlichen Teil des Alltags werden nicht zu einem Anlass, sondern zu einem Zustand?

Als Team der iSauna Design Kft. arbeiten wir seit mehr als zwei Jahrzehnten daran, dass die Sauna keine isolierte Funktion ist, sondern ein ruhiger, geschützter Raum, der entschleunigt und die Geräusche der Außenwelt ausblendet. Tagsüber fügt sich die Spiegelglas Sauna harmonisch in ihre Umgebung ein, am Abend schafft sie eine warme, intime Innenwelt. Ein Ort, an dem man nicht hetzen, funktionieren oder sich anpassen muss.

Dieser Raum drängt sich nicht in den Vordergrund. Er ist leise präsent und genau dadurch wird er zu einem echten Mehrwert für die Lebensqualität.

Die klare Essenz der Sauna

Mirror Zen verkörpert die reinste Idee der finnischen Saunakultur. Sie möchte nicht beeindrucken und zeigt nicht mehr als das, was wirklich zählt. Ein ruhiger Raum, in dem Wärme, Holz und Licht zusammenwirken, um zu entschleunigen, den Alltag loszulassen und zum eigenen Rhythmus zurückzufinden.

Die Innenraumgestaltung ist bewusst reduziert. Natürliche Materialien, ein gleichmäßiges Wärmegefühl und dezent integrierte Beleuchtung sorgen dafür, dass Saunieren nicht zur Leistung, sondern zu einem Ritual wird. Die musikalische Vorbereitung fügt sich unauffällig in den Raum ein und ermöglicht es, das Erlebnis individuell an die eigene Stimmung anzupassen.

Mirror Zen ist nicht nur eine Outdoor Sauna, sondern ein geschützter, stiller Ort für den Alltag. Ein Raum, der sich nicht erklärt und dennoch jedes Mal daran erinnert, wie wohltuend es ist, kurz innezuhalten.

Ein Wellnesshaus, das zum Lebensraum wird

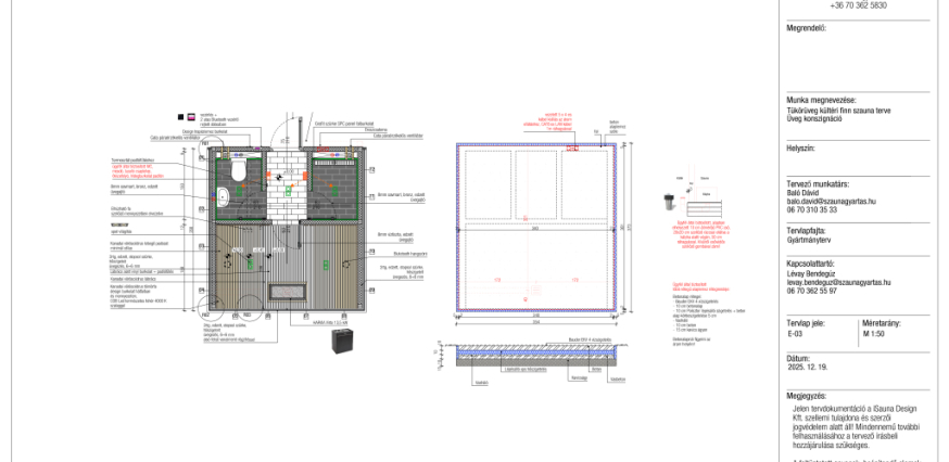
Mirror Lounge wurde für all jene entwickelt, die Sauna nicht als einzelne Funktion betrachten, sondern als Teil eines längeren, bewusst erlebten Prozesses. Ein Raum, in dem man nicht zum nächsten Schritt gedrängt wird, weil alles vorhanden ist zum Ankommen und zum Verweilen.

In diesem Konzept ordnet sich alles um die Sauna herum. Der ruhige Eingangsbereich sowie das dezent integrierte WC und die Dusche sind selbstverständlich in den Rhythmus des Saunierens eingebunden, ohne Unterbrechung. Die Räume gehen fließend ineinander über, ziehen keine Grenzen, sondern eröffnen Möglichkeiten für Entschleunigung und Tiefe.

Mirror Lounge stellt Komfort nicht zur Schau er ist einfach da. Spürbar sind Stabilität, Ausgewogenheit und jene Ruhe, die längere Aufenthalte ganz selbstverständlich macht. Hier ist Wellness kein Ereignis mehr, sondern ein natürlicher Teil des Lebens. Ein Ort, zu dem man gerne zurückkehrt und an dem man immer ein wenig länger bleiben möchte.

Die Sauna, die sich öffnet - Mirror Nature

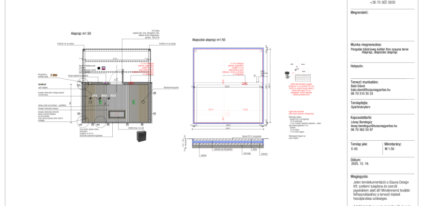
Mirror Nature öffnet das Konzept der Spiegelglas Sauna weiter zur Umgebung hin. In dieser Ausführung ist Saunieren kein geschlossener Moment, sondern eine natürliche Verbindung zwischen innerer Ruhe und Außenwelt. Die direkt angeschlossene Pergola schafft einen überdachten und zugleich offenen Raum, in dem Entspannung beinahe unmerklich weiterfließt.

Unter der Pergola stehen Innehalten und Präsenz im Mittelpunkt. Ein Ort, an dem man nach dem Saunagang nicht sofort in den Alltag zurückkehren muss, sondern Zeit hat zu atmen, wahrzunehmen und langsamer zu werden. Der Raum ist geschützt, aber nicht abgeschottet der Wechsel der Jahreszeiten, das Licht und die Nähe zur Natur bleiben stets Teil des Erlebnisses.

Mirror Nature ist ganzjährig nutzbar, ohne Anpassung zu verlangen. Die Pergola ist kein Zusatz, sondern ein integraler Bestandteil der Sauna, der das Outdoor Wellness Erlebnis weiter vertieft. Eine Lösung, bei der die Sauna nicht abschließt, sondern sich öffnet zum Raum, zur Stille und zur Natur.

Individuelle Saunamanufaktur nach der iSauna Design Philosophie

Jede von uns geplante Spiegelglas Sauna entsteht in individueller Fertigung. Wir bieten keine Serienprodukte, sondern maßgeschneiderte Premium Saunalösungen, bei denen emotionale Erfahrung und technische Zuverlässigkeit im Gleichgewicht stehen. Diese Referenz zeigt eindrucksvoll, dass eine hochwertige Outdoor Sauna nicht nur ein Designobjekt ist, sondern eine bewusste Investition in Lebensqualität, Ruhe und langfristige Werte.

 

Wellness wird dann zu echtem Wert, wenn sie persönlich wird

Wenn Sie möchten, dass sich Ihre Spiegelglas Sauna wirklich an Ihr Leben, Ihre Umgebung und Ihren Rhythmus anpasst, sprechen wir gerne in ruhiger Atmosphäre darüber.

Vereinbaren Sie ein persönliches Beratungsgespräch mit uns.

Ihre Meinung ist uns wichtig!

  
Schicken Sie uns Ihre Kommentare, Anregungen, damit wir unsere Saunen und Saunahäuser an ihre Berdürfnisse anpassen können!
 

■ Bitte rufen Sie uns an, oder schreiben Sie uns eine E-Mail! Unser Mitarbeiter wird sich umgehend mit Ihnen in Verbindung setzen!

International Verkauf und Herstellung

Lévay Bendegúz

 Bendegúz Lévay
 International Sales Manager - HU/EN/DE
 Phone: +36 70 362 5597
 E-mail: info@szaunagyartas.hu

Online Sauna Aufmaß

Kaufen Sie DIREKT vom Sauna Hersteller, in exclusiver Qualität, zum besten Preis-Leistungsverhältnis!

■ Schreiben Sie bitte eine Nachricht, unsere Mitarbeiter helfen Ihnen gerne weiter!
Absenden

Glassauna vom iSauna Hersteller

Individuelle Design Cube Saunen vom iSauna Sauna Hersteller

Wellness Außensauna

Individuelle iSauna Wellness Außensauna in Ihren Garten

Sauna Wellness für Zuhause

Premium Qualität Sauna Bau nach eigenen Vorstellungen.

Salzzimmer, Salztherapie

iSauna Interieur mit Himalaya Salz. Heilen Sie sich mit Salztherapie!

Innenarchitektur Wohnungseinrichtung

Innenarchitektonische Planung und Ausführung in einer Hand. 

at hu de en sk cz