Individuelle Saunen, Saunahäuser und privat Wellness-Räume Leoben

Individuell geplante private Saunen
Das individuelle Design beeinflusst die Lebensqualität. Die Verwendbarkeit von anspruchsvoll und bewusst geplanten Innenräumen bringt Schönheit in den Alltag.
Das Design einer individuell geplanten Innensauna, Außen Saunahaus, Wellness Zuhause zaubert die Umwelt und den Alltag wertvoller.
Das Design alleine ohne architektonischen Lösungen ist nichts Wert, daher bieten wir es Ihnen zusammen an.

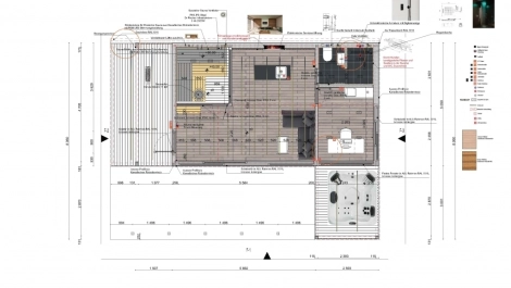
Prozess der individuellen Planung
In jedem Fall beginnt die Wellness Planung und Bau mit einem umfangreichen Gespräch und Brainstorming. Sie berichten uns über Ihre Vorstellungen, Wünsche und wir verwirklichen diese in einem 2D oder 3D Plan. Während der individuellen Planung ziehen wir den Ort, das gewünschte Design, die gewählten Wellness Funktionen und Ihren Lebensstil in Betracht.
Die iSauna Design Kft. Sauna Manufaktur hilft Ihnen mit bewusstem Design, individuellen 2D-3D Planungen, einer Präzision hohen Grades speziellen Lösungen und einer exklusiven Ausführung, damit die Sauna Ihrer Träume Ihnen für lange Jahrzehnte Tag für Tag zur Verfügung steht.
Einige nützliche Informationen:
-unverbindlicher Fabrikbesuch
-Ungarische Familienmanufaktur auf die Gesundheit spezialisiert
-Individuelle Aluminium Fenster und Türen mit Alurahmen in individueller RAL Farbe
-Individuelle PVC Fenster und Türen mit gehärtetem Glas mit Rahmen in individueller RAL Farbe
-Individuelles Stehfalzdachsystem in individueller RAL Farbe
-Persönliche Kontrollmöglichkeit über den Bauprozess
-Übersichtliche Angebote persönlich und digital
und viele weiteren nützlichen Dienstleistungen.
Innovation in der Welt der Saunen
Unsere Werte, wie die kompromisslose Qualität unserer Produkte und Dienstleistungen, sind die stabile Basis für unsere Geschäftsphilosophie.
Als Pionier der Innovation halten wir die Änderungen für wichtig, die der Vervollständigung des iSauna Erlebnisses gemäß den Ansprüchen unserer Kunden beitragen.
„Alles, was du tun kannst oder wovon du träumst, tue es! In Kühnheit steckt das Genie, die Kraft und das Zauber.“ (Goethe)



